Drawing
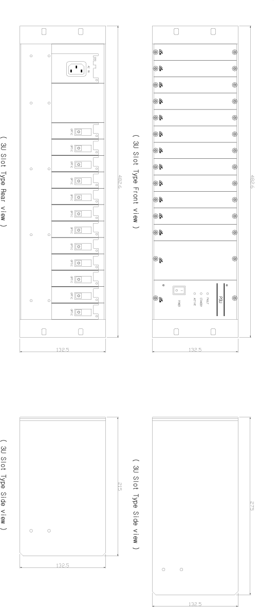
Names of goods : 3U Slot Type Case
DOWUNLOAD: 3u-slot-type-case.dwg , Image download

LIST